Der Ersatzneubau des Doppelkindergartens am Dennigkofenweg 197 ist der siebte von insgesamt acht Neubauten im Rahmen der Gesamtplanung Kindergärten. Er wurde im August 2022 bezogen.
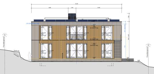
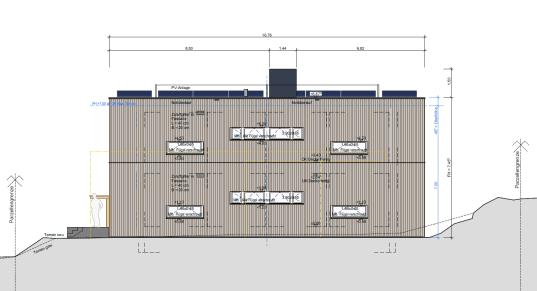
Mit den Abbrucharbeiten am Altbau aus dem Jahr 1979 wurde Ende September 2021 begonnen. Wie bei den anderen neuen Doppelkindergärten (Schiessplatzweg 34, Rütiweg 138 und Mitteldorfstrasse 12a) ist auch hier die Anordnung der beiden Kindergärten nicht mehr nebeneinander, sondern übereinander vorgesehen. So kann ein sehr kompaktes Gebäudevolumen realisiert werden, was sich positiv auf die Erstellungs- und Betriebskosten sowie die Energiebilanz auswirkt. Zudem wird so weniger Boden überbaut und es bleibt mehr Platz für eine attraktive Umgebungsgestaltung.
Aufgrund der gewählten Modulbauweise mit vorgefertigten Holzelementen kann der Neubau innerhalb kurzer Zeit realisiert werden. Das Gebäude wird nach Minergie©-A-Eco zertifiziert, dank der grossflächigen Photovoltaik-Anlage auf dem Flachdach wird mehr Strom produziert werden, als für den Betrieb selber benötigt wird.
Die Arbeiten gingen zügig voran, so dass der Neubau im Sommer 2022 in Betrieb genommen werden konnte. Im Video werden die während der zehnmonatige Bauhpase von der Webcam aufgenommenen Bilder zusammengefasst - vom Abbruch und Baubeginn bis zum Abschluss der letzen Arbeiten.
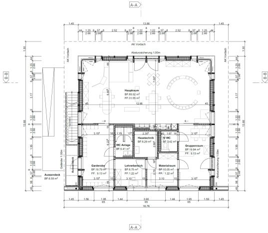
Das Projekt basiert auf einem fast quadratischen Grundriss mit einer Geschossfläche von ca. 190 m2 und einem umlaufenden Aussenspieldeck. Das Erdgeschoss liegt knapp 60 cm über der Umgebung, das Gebäude ist nicht unterkellert. Hauptelement des Kindergartens ist der grosse Hauptraum mit integrierter Küche. Im Gebäudezentrum liegen ein Putz- und Haustechnikraum sowie die beiden WC-Anlagen (Kinder- & IV/Lehrer-WC). Auf der Rückseite befinden sich die Garderobe, das Lehrerbüro und der Materialraum sowie der Gruppenraum. Die Nettogeschossfläche des Einzelkindergartens beträgt insgesamt ca. 160 m2.
Das Gebäude ist als Modulbau aus vorgefertigten Holzelementen konzipiert, es erfüllt den Standard nach Minergie©-A-Eco und ist mit einer kontrollierten Lüftung ausgestattet. Es verfügt über eine Photovoltaik-Anlage auf dem Dach, damit wird mehr Strom erzeugt, als der Kindergarten selber benötigt. Die Wärmeerzeugung basiert auf einer Luft-Wasser-Wärmepumpe, die Verteilung erfolgt über eine Bodenheizung. Die Beleuchtung basiert auf LED-Lampen mit Tageslichtsteuerung. Dank der sehr guten Wärmedämmung und dem optimierten Gebäudevolumen können die Betriebskosten (Wärme, Strom) massiv reduziert werden.




Interessierte Bürgerinnen und Bürger können sich bei der Gemeinde Ostermundigen, Abteilung Hochbau, informieren.